Imagine 35

Apartament 2 camere Nou - Calea Şurii Mici - Sibiu

ID: P32 Sibiu 12
101.000€ + TVA
Descriere
Cauți un apartament de vânzare în Sibiu, într-un ansamblu rezidențial modern, construit la standarde actuale? Acest ansamblu îți propune locuințe atent proiectate, ideale atât pentru locuit, cât și pentru investiție, amplasate într-o zonă liniștită, cu acces rapid către principalele puncte de interes ale orașului.

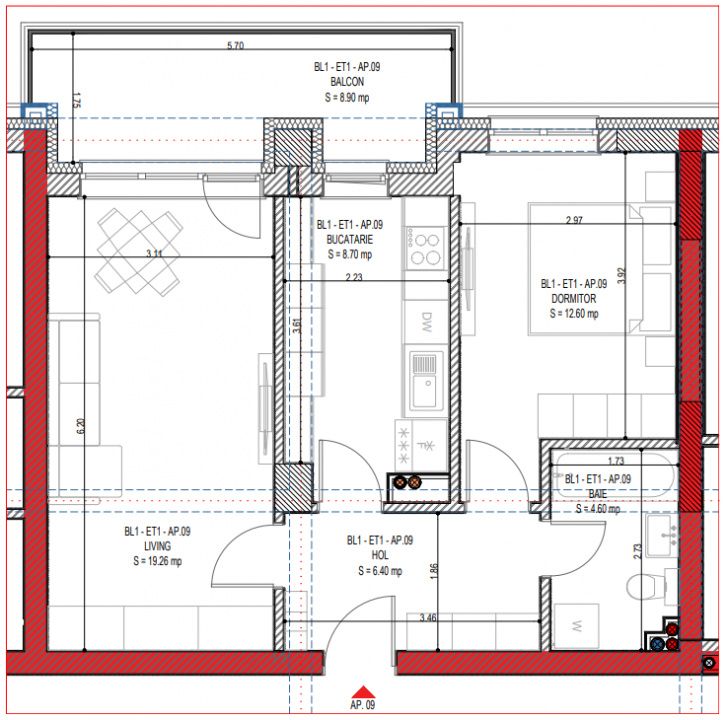
Apartament 2 camere

Suprafață utilă: 51,56 mp
Balcon/terasă: 8,9 mp
Living: 19,26 mp
Bucătărie: 8,7 mp
Dormitor: 12,60 mp
Baie: 4,6 mp
Hol: 6,4 mp


Predare apartamente – LA ALB

Pereți tencuiți, gletuiți, amorsați și vopsiți cu lavabil alb
Pardoseli cu șapă mecanizată
Tâmplărie PVC cu 3 foi de sticlă și profil de 5 camere
Instalații electrice complete (curenți tari și slabi) + tablou electric
Încălzire în pardoseală Uponor
Infrastructură pregătită pentru termostate
Contoare individuale montate (apă, gaz, electricitate)
Videointerfon
Ușă de acces în apartament

Sistem constructiv și finisaje exterioare:

Structură pe cadre din beton armat
Pereți exteriori din cărămidă de 25 cm
Pereți interiori din cărămidă de 11,5 cm și 25 cm
Termoizolație cu polistiren
Bandou de vată minerală între etaje
Tencuială decorativă
Terase și balcoane cu parapet din sticlă securizată, placate cu gresie
Centrală termică la nivel de bloc


Acest apartament este alegerea potrivită dacă îți dorești confort, calitate și un stil de viață modern, într-un proiect rezidențial solid și bine gândit.
Caracteristici
  • ID:P32
  • Nr. camere:2
  • Nr. dormitoare:1
  • S. utila:51.56 mp
  • S. balcoane:8.90 mp
  • Comp.:Decomandat
  • Confort:1
  • Etaj:Etaj 1
  • Nr. bucatarii:1
  • Nr. bai:1
  • Nr. balcoane:1
  • An constructie:2026
  • Structura:Caramida
  • Tip imobil:Bloc
Specificatii
Curent
Apa
Canalizare
Gaz
Termoficare
Centrala imobil
Incalzire pardoseala
Izolatie Exterior
Bloc izolat termic
Ferestre PVC
Usa intrare Metal
Terasa
Videointerfon
Localizare
Trusso Real Estate
Manager
Esti interesat de aceasta proprietate ?
Proprietati similare
TOP 0% comision Rep. exclusiva De vanzare Imagine 569
Apartament 2 camere decomandat | 43 mp | Etaj 1 | Șelimbăr – Doamna Stanca
Sibiu, Selimbar 94.000€
2 camere 1 baie 43mp
TOP 0% comision De vanzare Imagine 43
Apartament 2 camere Nou - Doamna Stanca
Sibiu, Selimbar 112.000€
2 camere 1 baie 56.15mp
De vanzare Imagine 272
Apartament cu două dormitoare - etaj 1 - nou - Doamna Stanca
Sibiu, Selimbar 112.000€ 115.000€
3 camere 1 baie 56.12mp
0% comision De vanzare Imagine 126
Apartament 2 camere nou - Calea Surii Mici
Sibiu, Calea Surii Mici 114.850€
2 camere 1 baie 57.30mp